风水是一门居住风水学,风水中有很多的神煞,煞包含有形煞与无形煞,它们对于居住者的影响是巨大的。
那么常见的外煞有哪些如何化解,下面华玺易学网为大家介绍居家风水外煞的辨别与化解。
居家风水外煞的辨别与化解
1、反弓煞(反弓水、镰刀煞)
(1)辨别:住家正对马路、高架桥或河道的反弓处
(2)影响:意外血光、破财连连
(3)化解:悬挂山海镇或八卦镜
2、路冲、巷冲
(1)辨别:住家正对道路交接处,楼层越低伤害越大
(2)影响:人丁不旺、破财不断、车关意外血光频传
(3)化解:摆放石敢当或石狮子。适合五金行、修缮或银行等行业
3、冲背煞
(1)辨别:路冲正对住家后方
(2)影响:意外血光、招致小人
(3)化解:摆放九宫八卦牌或山海镇
4、剪刀煞
(1)辨别:住家位于三叉路口,其内角度低于9度者,称之为剪刀煞
(2)影响:意外血光
(3)化解:安置石敢当或是山海镇(3)化解
5、无尾巷(死巷煞)
(1)辨别:住家位于死巷子内
(2)影响:气数已尽、健康下滑
(3)化解:摆放大型阔叶林盆栽或流水盆
6、壁刀煞、双壁刀煞
(1)辨别:对面建筑物与自家无切平,导致墙角正对住家
房门、座位或床位正对梁柱
(2)影响:是非不断、贵人碰壁、意外血光
(3)化解:悬挂十相自在、水晶球或山海镇
7、天斩煞
(1)辨别:住家面对两栋大楼中间的夹缝
(2)影响:事业不顺、意外血光
(3)化解:摆放风水盘或风狮爷
8、屋檐煞、室外棺材煞
(1)辨别:住家正对对家尖形或圆弧形屋檐
(2)影响:意外血光
(3)化解:悬挂九宫八卦牌或山海镇
9、室内棺材煞
(1)辨别:天花板为圆弧形
(2)影响:意外血光、家运衰退
(3)化解:以布幔或隔板修饰
10、坎坷煞
(1)辨别:住家大门前地势不平整或住家位于山坡地
(2)影响:运势受阻、贵人运势受阻、不利人际关系
(3)化解:铺平或摆放大型阔叶林盆栽
11、退财煞(畚箕厝)
(1)辨别:住家屋型前宽后窄,形似畚箕,大门前路面比住宅还要高
(2)影响:守财不易、子孙不肖
(3)化解:门口摆放盆栽或黏有三十六枚铜板的红地毯
12、探头煞(小人探头)
(1)辨别:住家附近的屋顶,有明显的凸出物
(2)影响:小人觊觎、被窃破财、红杏出墙
(3)化解:摆放山海镇或九宫八卦牌
13、官帽煞
(1)辨别:住家附近的屋顶,凸出物呈现T字型
(2)影响:官司缠身
(3)化解:悬挂山海镇或乾坤太极图,职业为军人或官职者,可提升官运
14、药罐煞
(1)辨别:从住家可见水塔、在家中摆放过多外露的药品或水塔压床位
(2)影响:疾病难愈、因病破财
(3)化解:摆放放有放一枚硬币的碗公或口朝煞物的葫芦
装设不透光窗帘
收拾药品到有门的柜子或抽屉内
15、阴枯煞
(1)辨别:住家邻近坟墓、殡仪馆、医院或门前有枯萎的植物
(2)影响:聚集阴气、感情波折
(3)化解:大门挂上八卦镜
正对煞气摆放山海镇或九宫八卦牌、屋内摆放风水盘或罗盘
16、包袱煞(包袱屋、挑肩煞)
(1)辨别:为了增加使用面积,会在住家两侧增建空间
增建的空见必须与主建筑物「相连」或可从主建筑物内直接通往该增建的空间
外推坪数过多,超过室内坪数的三分之一
外推的空间作为起居用途,例如厨房、餐厅或卧房等
使用透光材质,就不构成包袱屋
(2)影响:增加负担、健康衰退、守财不易
(3)化解:四个角落摆放水晶柱、装有五色水晶或豆子的葫芦
17、宫庙煞
(1)辨别:住家邻近神坛、寺庙、教堂或警察局
(2)影响:运势受阻、是非不断
(3)化解:大门挂上八卦镜、屋内摆放风水盘或罗盘
摆放山海镇或九宫八卦牌
18、抬轿屋
(1)辨别:卧房位于骑楼上方
(2)影响:婚姻难保、意外频传、精神耗弱
(3)化解:移动床位、或在四个角落摆放白水晶柱或八枚铜板
19、穿财煞
(1)辨别:住家下方为河道或水沟,呈现悬空状
(2)影响:财运不稳、健康下滑
(3)化解:补平下方的水道
20、照盆煞
(1)辨别:住家邻近着不流动的水池
(2)影响:运势受阻、破财连连、不利人际关系
(3)化解:填补水池
21、孤峰煞
(1)辨别:住家的前后左右都没有靠山或大厦
(2)影响:孤苦无依、子孙远离
(3)化解:在吉位或旺气位安放明咒葫芦和铜葫芦
22、地陷煞
(1)辨别:居住的房屋与四周的建筑比起来是相对的「最低点」
(2)影响:事业受阻
(3)化解:放置阔叶林盆栽
23、坎坷煞
(1)辨别:住家大门前地势不平整或住家位于山坡地
(2)影响:运势受阻、贵人运势受阻、不利人际关系
(3)化解:铺平或摆放大型阔叶林盆栽
24、龙高虎低(虎高龙低)
(1)辨别:住家左/右边为高大建筑物,右/左侧没有建筑物,形成左/右高右/左低之局
(2)影响:意外血光,「龙高虎低」女性运势低落;「虎高龙低」男性事业受阻
(3)化解:住家正面悬挂山海镇
25、退龙格(前高后低)
(1)辨别:住家前的地势比屋后的地势低或前面的建筑较高而后面较低
(2)影响:家运衰败、财运衰败
(3)化解:摆放三十六枚铜板在住宅后半部
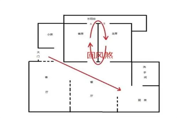
26、凹风煞
(1)辨别:住家为倒凹字型公寓或大楼,住家位于凹处
(2)影响:头部病痛、情绪起伏
(3)化解:悬挂山海镇或摆放阔叶林盆栽
27、围墙高度过低
(1)辨别:高度矮于至一百五十公分
(2)影响:招致宵小
(3)化解:加高高度至一百五十至一百七十公分左右
28、出门碰壁
(1)辨别:住家大门正对墙壁、高山或大楼
(2)影响:事业不顺、桃花不开
(3)化解:加强灯饰采光
29、出门见柱
(1)辨别:电线杆或柱子正对大门或窗户
(2)影响:意外血光、口舌是非
(3)化解:摆放九宫八卦牌或山海镇
30、反光煞
(1)辨别:住家正对会造成光害的建族物
(2)影响:家人不聚、破财连连
(3)化解:设置不透光窗帘或贴上雾面贴纸
31、淋头水
(1)辨别:摆放水缸位置过高或床头后方为浴厕
住家紧临山坡地,以致枯叶、昆虫尸体滑落至阳台
(2)影响:守财不易
(3)化解:移开水缸或将床头转向
32、蜈蚣煞
(1)辨别:住家外部有往两旁延伸电线的电线杆、电塔、基地台或电线攀附
(2)影响:不利生子、家人失和、贵人远离、伤害男丁运势
(3)化解:摆放铜鸡或八卦镜
33、露骨煞
(1)辨别:住家内外的管线或钢筋外露
(2)影响:慢性疾病、意外血光
(3)化解:包覆管线或将管线漆上与墙壁同色的油漆
34、卵石煞
(1)辨别:住家内外的石头过多
(2)影响:肿瘤疾病
(3)化解:清除石头
35、勾绞煞
(1)辨别:住家外墙布满爬藤类植物
(2)影响:易导致神智不清、产生幻觉、人际关系不佳
(3)化解:清除爬藤类植物
36、鬼衣煞
(1)辨别:悬吊的衣物外露
(2)影响:招致小人、受到惊吓
(3)化解:往旁移动
37、破乱煞
(1)辨别:住家邻近着环境脏乱或破旧的建筑物
(2)影响:破财连连、易聚集阴气、不利人际关系
(3)化解:点燃檀香或摆放盐灯
38、动土煞
(1)辨别:住家外部正在进行动土行为
(2)影响:意外频传、不利财运、家庭失和、不利婚姻
若是冲到太岁方位,对居住者的(2)影响则会加剧。查看生肖年的太岁方位
(3)化解:摆放龙龟
39、同门不同轴
(1)辨别:住家的两扇大门分别朝向不同的方向开启
(2)影响:家人不同心、口舌是非多、家人感情不佳
(3)化解:改为同轴或在门把悬挂葫芦
40、斗口煞(门对门)
(1)辨别:住家大门正对邻居大门或卧房门相互正对
(2)影响:口舌是非
(3)化解:门上悬挂八仙彩或十相自在
悬挂不透光门帘
41、门切门
(1)辨别:两扇门并无相互正对,导致壁刀切门
(2)影响:切龙边伤男人健康、切虎边伤女人健康
(3)化解:悬挂不透光门帘
42、破损门
(1)辨别:大门或房门破损
(2)影响:病从口入、口舌是非、家运衰退
(3)化解:修补大门或房门
43、口臭门
(1)辨别:门口摆放的鞋子、开放式鞋柜或会造成「味煞」的物品
(2)影响:财气不聚、贵人远离
(3)化解:摆放有门的鞋柜或使用芳香精油
44、阴阳门
(1)辨别:门型保留,却无法开启
(2)影响:招阴危机、睡眠不佳
(3)化解:拆除门与框
45、歪嘴门(斜门)
(1)辨别:大门如果开于东北和西南之五鬼在线或门为斜开
(2)影响:招阴中邪、招惹小人
(3)化解:调整门向或在门后摆放十相自在
46、子母门
(1)辨别:大门开左右大小不一的两扇门
在铁卷门上再多开一道进出的小门
(2)影响:男丁绝后、女性孤寡
(3)化解:改成一片式大门或于较小的门之门槛摆放五帝钱
47、蝴蝶门
(1)辨别:两扇门在同一侧且完全对称
(2)影响:招烂桃花
(3)化解:加装门槛或隔板,借以改变门的尺寸
加装拉门或整片式的过膝门帘
文公尺测量内围(门框不用算)为吉数
48、哭字门、哭字窗
(1)辨别:住家在同一面墙上开了两扇门或窗
两户打通后,各自保留原来的大门
(2)影响:家运不稳、伤心事多、意外血光
(3)化解:封掉其中一扇门或窗或朝门外摆放麒麟
49、拱门煞(墓碑煞)
(1)辨别:住家内部设置了圆弧状的门或窗
(2)影响:夫妻失和、意外血光
(3)化解:悬挂门帘或在门的两侧悬挂麒麟
推荐阅读:








